Thilo Doldi
Bauforscher
Architekt

Niederstätter in Bruneck

01
  • 02
  • 03
  • 04
  • 05

Die historische Bauforschung ermöglicht neue Rückblicke in die Historie von Gebäuden und Lebensweisen. Sie hilft, unsere so vielfältigen Zeugen der Vergangenheit schätzen zu lernen und sie zu erhalten. Bauherren und Baudamen lernen, welche Schätze sie in ihren Händen halten.

Denkmalpfleger&Innen können durch die erhöhte Detailkenntnis ihre Entscheidungen besser begründen.

Meine Arbeit erfolgt in enger Zusammenarbeit mit dem Denkmalamt in Bozen.
Selbstverständlich übernehme ich auch Aufträge von Privatpersonen und Institutionen.

Referenzen

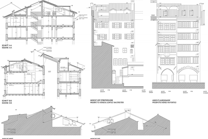
  • Eine bauhistorische Analyse liefert wesentliche Erkenntnisse zur historischen, künstlerischen und kulturellen Be­deutung eines Baudenkmals

    aus "Richtlinien für Bauhistorische Untersuchungen" BDA

  • Beschreibung Befundkatalog Raumbuch Dokumentation Fassung Sondagen Interpretation Stratigrafie

Historische Bauforschung
(ab 2023)
Freiberufliche Tätigkeit als Architekt
(2003 - 2017)
Lehrer an der Technischen Fachoberschule für Grafik und Kommunikation in Brixen: grafische Fächer, Film und Fotografie, Marketing
(2005 - 2023)
Mitarbeit bei Architekt Konrad Rieper,
Abram&Schnabl
(bis 2003)
Studium der Architektur in Venedig und Wien
(bis 1998)

Zu Studienzeiten war die Fotografie meine Leidenschaft. Motive wurden auf SW-Filmen gebannt und in der Dunkelkammer entwickelt. Das Auge ging auf die Jagd.

Arch. Thilo Doldi
Bauforscher

Leegtorweg 1B
39100 Bozen
Italien

MwSt.Nr. / P.IVA: 03220690212

Willkommen bei Thilo Doldi.

Der von Ihnen genutzte Browser ist veraltet und möglicherweise unsicher. Laden Sie sich hier einen aktuellen Browser, um die Seite anzuzeigen: whatbrowser.org

+39 340 0862022

thilo@doldi.it